De inhoud op deze pagina wordt momenteel geblokkeerd om jouw cookie-keuzes te respecteren. Klik hier om jouw cookie-voorkeuren aan te passen en de inhoud te bekijken.
Je kan jouw keuzes op elk moment wijzigen door onderaan de site op "Cookie-instellingen" te klikken."
Ga naar hoofdinhoud
Slow life

DIY: zo maak je een egelhuis

header egelhuis

Maak van de tuin een veilige plek voor egels met een zelfgemaakt houten egelhuis. Met het juiste materiaal en gereedschap zet je dat binnen no-time in elkaar. Het beschermde dier zal je dankbaar zijn en er misschien zelfs zijn winterslaap houden. Pak de zaag, hamer en kwast er maar bij; een egelhuis maken is simpel met dit stappenplan en bijbehorende bouwtekening.

Waarom een egelhuis maken?

Door een egelhuisje te maken help je een diersoort waar het niet zo goed mee gaat. Het aantal egels in Nederland is in de afgelopen tien jaar gehalveerd. Ze hongeren uit omdat ze niet genoeg voedsel kunnen vinden, komen onder een auto terecht of eten per ongeluk giftige slakkenkorrels. Heb je een tuin waarin je de natuur een beetje haar gang laat gaan? Dan is de kans groot dat daar ’s nachts een egel rondscharrelt die wel wat hulp kan gebruiken. Je herkent de aanwezigheid van zo’n stekelige bezoeker aan pootafdrukken, uitwerpselen en verschoven bladeren.

Zelf een egelhuis maken

Normaal gesproken houden egels hun winterslaap van oktober/november tot april/mei. Toch kunnen ze pas aan één stuk door slapen als ze voldoende reserves hebben opgebouwd. Het bijvoeren van egels is dus een nobel gebaar. Als je wat kattenvoer en wat water (absoluut geen melk!) neerzet hoeven egels hun energie niet te verspillen aan een zoektocht naar voedsel. Droge bladeren bieden daarbij een goede schuilplek en bouwmaterialen voor een fijn nest. Door een egelhuis te maken geef je het winternest van de egel een stevige upgrade. Goed om te weten: sommige egels veranderen in februari van nestplaats. Je kunt dus ook meerdere egelhuisjes maken.

Let op: iedere tuin is in principe geschikt voor een egelhuis. In tuinen met een tot de grond geplaatste schutting maak je daar het liefst wel wat tunnels onderdoor. Zorg voor poortjes met een doorsnede van veertien centimeter, dan past de egel er precies doorheen.

Dit heb je nodig

*) Bij het maken van dit egelhuis is gekozen voor de kleur Blue Ground 210 in de Intelligent Exterior Eggshell collectie van Farrow and Ball: een extra matte buitenverf op waterbasis.

Een egelhuis maken: zo doe je dat

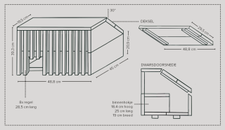
Een simpel egelhuis maken is niet moeilijk, maar vraagt wel om wat aandacht. Houd onderstaande bouwtekening voor een egelhuis maken, inclusief afmetingen, goed bij de hand. Om alle gezaagde onderdelen duidelijk uit elkaar te houden, staan in deze werkbeschrijving niet alleen de maten maar worden ze ook aangeduid met een letter.

  1. Zaag drie planken van 48,8 × 19,5 × 1,9 centimeter (K) en negen planken van 45 × 19,5 × 1,9 centimeter (A). Zaag hiervan twee planken tot 45 × 16,5 × 1,9 centimeter (B). De andere zeven blijven 19,5 centimeter breed.
  2. Zaag de twee planken van 16,5 centimeter (B) schuin vanaf 18,5 centimeter naar de punt beneden (E).
  3. Zaag negen regels van 36 centimeter en twee regels van 34 centimeter (C).
  4. Zaag twee regels van 20,5 centimeter en zaag deze aan de kopse kant schuin tot 19 centimeter aan de overzijde (D).
  5. Zaag voor de voorkant (F) uit de eerder gezaagde plank van 45 centimeter (A) op 4,5 centimeter van links een opening aan de onderkant van 12 centimeter breed en 12 centimeter hoog.
  6. Monteer deze plank (A) op plank (B) met twee regels (C) aan de achterkant, maar zorg ervoor dat er 1,9 centimeter vanaf onderen vrij blijft. Links en rechts vanaf de onderkant, eerst voorboren en dan lijmen en vastschroeven met schroeven 3,5/40.
  7. Maak de achterkant (G): monteer 2 keer regel (D) gelijk met de zijkant op plank (A) met een ruimte van 1,9 centimeter vanaf de onderkant. Boor voor, lijm vast en schroef vast met schroeven van 3,5/40.
  8. Maak de zijkanten: monteer de rechte plank (A) aan de onderkant van (F), waarbij je 4,5 centimeter voorbij steekt aan de gemaakte voorkant (F), maar wel gelijk met de achterkant (G).
  9. De plank aan de onderkant blijft gelijk met de plank onderaan bij de voor- en achterkant. Boor voor, lijm vast en schroef vanaf de buitenkant vast met schroeven 3,5/40. Plaats schuine plank (E) boven plank (A). Doe dit zowel links als rechts voor beide zijkanten.
  10. Voor de onderkant (G): zaag een plank van 45 × 19,5 × 1,9 centimeter (A) en een plank van 45 × 16,5 × 1,9 centimeter (B). Monteer beide planken gelijk met de onderkant van het huisje: de plank van 19,5 centimeter breed (A) komt aan de voorkant van het hok en de plank van 16,5 centimeter breed (B) aan de achterkant.
  11. Boor voor, lijm vast en schroef vanuit de buitenkant vast met schroeven 3,5/40.
  12. Voor het vaste dakdeel: zaag drie planken van 45 × 19,5 × 1,9 centimeter (A).
  13. Voor het beweegbare dakdeel: zaag twee regels van 28,5 × 4,5 × 1,9 centimeter (H). Zaag een plank van 45 × 19,5 × 1,9 centimeter (K) in verstek schuin in de lengte op 30 graden, aan één zijde (I). Zaag één plank van 45 × 19,5 × 1,9 centimeter (K) op 11,5 centimeter in de breedte naar 11,5 centimeter en vervolgens aan de kopse kant in verstek op 30 graden (J).
  14. Monteer plank (I) op de bovenkant gelijk met de voorkant, het verstek van 30 graden aan de achterkant. Boor voor, lijm en schroef vast met schroeven 3,5/40.
  15. Monteer het vaste dakdeel (I) op het huisje, waarbij voorkant (I) gelijk is aan voorkant (E). Dit doe je door de twee regels (H) uit elkaar op de grond te leggen en vervolgens K en J erop te leggen, tegen elkaar aan. Plank (J) komt onderop met ook nog eens de zaagsnede van 30 graden naar beneden. Let op: spring 2 centimeter (L) vanaf onderkant in en 7 centimeter vanaf de zijkant (M).
  16. Boor voor, lijm en schroef vast met schroeven 3,5/40.
  17. Voor de afwerkingslatten aan de voorkant: zaag acht regels van 36 × 4,5 × 1,9 centimeter (N), twee regels van 24,5 × 4,5 × 1,9 centimeter (O) en twee regels van 45 × 4,5 × 1,9 centimeter (P). Monteer de acht regels (N) van 36 centimeter aan de voorkant van het huisje, waarvan twee gelijk met de buitenzijde van de opening van het gat. Verdeel de overige zes regels over de voorkant, tussen de regels zit ongeveer 1,8 centimeter ruimte. Monteer de twee regels van 24,5 centimeter (O) boven de opening. De bovenkant van de regel zit tegen het dak aan, lat met de smalle kant naar voren toe. Voorboren, lijmen en vanuit de buitenkant vastschroeven met schroeven 5,5/40.
  18. De twee gezaagde regels van 45 × 4,5 × 1,9 centimeter (P) zijn voor op de onderkant. Monteer deze op 5 centimeter van de voor- en achterkant. Aan de zijkanten heb je aan beide kanten 1,9 centimeter ruimte. Boor voor, lijm en schroef vanaf de buitenkant vast met schroeven 3,5/40.
  19. Om het gangetje te maken: zaag van resthout twee planken van 25 × 19,5 × 1,9 centimeter (Q). Zaag hiervan één op hoogte 18,5 centimeter en een op hoogte 16,5 centimeter. Monteer het stuk van 18,5 centimeter op dat van 16,5 centimeter met schroeven 3,5/40. Maak in de hoek een inkeping van 4,5 centimeter in de breedte en 1,9 centimeter in de lengte voor de hoek van het hok waar de regel zit.
  20. Plaats deze in het verlengde van de opening. Boor voor, lijm en schroef vast met schroeven 3,5/40.
  21. Zodra de lijm droog is kun je het egelhuis schilderen in je favoriete kleur. Is dat wit of (net als in ons voorbeeld) een lichte kleur en is het Douglashout nog onbehandeld? Gebruik dan één laag grondverf op waterbasis.

egelhuis bouwen

Dit artikel verscheen eerder op vtwonen.nl.

Meer lezen

Productie Corrien Flohil  Ontwerp Johan Snoodijk, Danielle Verheul  Fotografie Sjoerd Eickmans
Gepubliceerd op 28 oktober 2023

Deel dit artikel
Van mental health tot goed nieuws

Flow nieuwsbrief

Wil je nog meer verhalen van Flow? Een keer per week versturen we een mail met onze best gelezen artikelen, fijne tips en aanbiedingen.

De inhoud op deze pagina wordt momenteel geblokkeerd om jouw cookie-keuzes te respecteren. Klik hier om jouw cookie-voorkeuren aan te passen en de inhoud te bekijken.
Je kan jouw keuzes op elk moment wijzigen door onderaan de site op "Cookie-instellingen" te klikken."